- 易迪拓培训,专注于微波、射频、天线设计工程师的培养
共面波导(CPW)的阻抗怎么计算?
看了许多天线的文献资料,有采用共面波导馈电的。比如说下面的例子,文献明明说是50欧姆共面波导馈线馈电(A 50- CPW transmission line,which consists of a signal strip thickness of 3.5 mm and a gap distance of 0.5 mm between the single strip and the coplanar ground plane, is used for feeding the antenna),可是我用AppCAD和ADS中的LineCalc这两个软件以计算,得到的阻抗值就不是50欧姆了。请问:
1、文献这样的说法有问题,还是这两个个计算工具AppCAD,ADS中的LineCalc不准确?
2、还有这两个计算工具得到的阻抗值也不相同,该以哪一个为准呢?
3、另外也碰到过微带线馈电的情况,文献上明明说是用50欧姆微带线馈电,文献的尺寸也给了,可是用以上两种计算工具就是得不到50欧姆的阻抗值。有人说是阻抗变换,究竟是怎么回事,糊涂了!
这一类问题我好像碰到好久了,一直是想不通,真是十分困惑,望达人予以解答!在此先表示感谢!
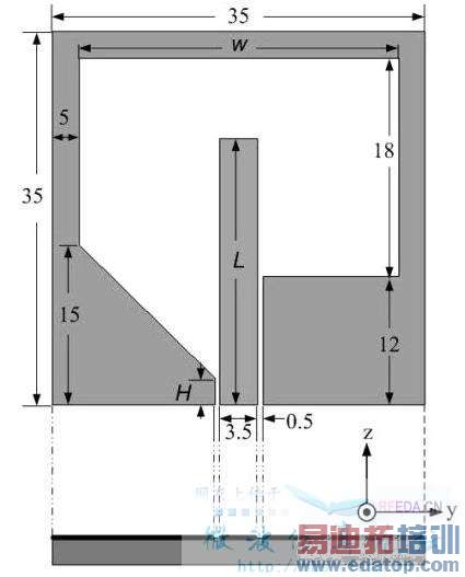
天线模型,截至介电常数2.65,厚为1.6mm

AppCAD计算得到的阻抗值

LineCalc计算得到的阻抗值

我计算了一下,特性阻抗跟楼主算的差不多,如果换成GCPW的话,
倒是接近50Ohm。
期待高手解答阿!
用TXLINE计算共面波导的阻抗值也不是50欧姆,64.4欧姆。一般情况是选择50欧姆的,但有时共面波导不是50欧姆,端口处的匹配更好。也可以把同轴接头与天线一起仿真,结果与波端口的有一些区别,尤其是对于微带或是共面波导比较短的天线。
共面波导计算阻抗时好像要分奇模和偶模
不同模式阻抗不一样
这取决于你的激励方式
1、注意铜箔的厚度,如果将铜箔的厚度设为0.12,你看看结果,应该是50.9,如果是0.13则是49.3.以你的值,铜箔不知道能不能做到0.035。。
2、可以以这个CPW的尺寸做一微带线,仿真它的输入阻抗(末端接负载),检验计算值和仿真值得对比结果。
注意看一下 1楼给出的说明,GCPW算出是50ohm,那么很可能文章里面说的cpw采用的是GCPW,在appcad计算的那个图上钩选 with groundplane
用txline算了一下,和1楼,3楼的结果是一样的。铜板厚度对阻抗影响还是很大的。
顺便问一句,LZ看的这个结构是UWB的平面槽天线吗?可否简单介绍两句
计算了 一下,铜箔的厚度的确与最后阻抗有的很大的关系,谢谢!
那再问一下铜箔的厚度一般有哪几种?
我之前用的就是0.03556mm厚的,所以一直以为这是一般的铜箔厚度。
另回复一下7楼:
这是一个超宽带的平面槽天线,带宽可达6.63GHz(2.27– 8.9 GHz),相对带宽达118.7%,详细请见这篇文章。
谢谢LZ分享文献。顺便多问一句,LZ研究该文的结构有什么心得没?它和之前的UWB平面槽或者其它UWB结构(比如平面单极等)相比有什么突出优势吗?
申明:网友回复良莠不齐,仅供参考。如需专业帮助,请学习业界专家讲授的天线设计视频培训教程。
上一篇:滤波器OR天线
下一篇:接收天线驻波的测试方法与发射天线一样吗?


