- 易迪拓培训,专注于微波、射频、天线设计工程师的培养
不要被错误的电路板拼板利用率计算唬弄了

PCB拼板(panelization)的目的在「提升电路板组装生产线的产出」以及「增加板材的利用率(使用率)」,换句话说就是在增加产能、降低电路板的单价,最终的目的就是『降低成本』。
可以先参考这篇文章了解【如何决定 PCB 连板数量 】。
一般来说我们在计算PCB板材的利用率时都非常倚赖PCB板厂的计算结果,可是有时候板厂在计算的利用率时却很有可能站在其本位主义,给出一个不一定最适合客户的答案。
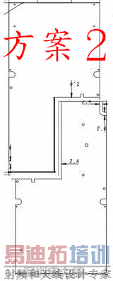
比如说文章最上面这个『L』型PCB板为例,PCB板厂给出的最佳拼板板材利用率为「方案1」,将两片板子并排,其利用率为78.50%。
其他我们认为可能是最佳拼板的板材利用率「方案2」,将「L」与「倒L」拼凑在一起的板材利用率为73%,而「方案3」4片拼板(4 in 1)的板材利用率则仅有67.90%。


这有点大大的跌破我们的眼镜,可是再仔细想想,这样计算真的对吗?
再仔细检讨一下板厂所提供的数据,发现「方案1」板材的利用率虽然最好78.50%,可是它却使用了比较大的板材(40.5”x48.5”)然后产出96片单板,可是「方案2」则使用了比较小的板材(36.5”x48.5”)可是一样产出96片单板,虽然板材利用率只有73%。
| 拼板方案 | 板材大小 | 拼板數/板材 | 单板/板材 | 拼板尺寸 | 板材利用率 |
| 1 | 40.5” x 48.5” 1028.7mm x 1231.9mm | 48 | 96 | 146mm x 142mm | 78.50% |
| 2 | 36.5” x 48.5” 927.1mm x 1231.9mm | 48 | 96 | 203.9mm x 85.2mm | 73% |
| 3 | 36.5” x 48.5” 927.1mm x 1231.9mm | 24 | 96 | 203.9mm x 158.6mm | 67.90% |
很明显板厂提供的这个板材利用率的计算有问题,那问题出在那里呢?
「方案1」的计算式,板厂原来把那块辅助用的板材(A)也算到利用率里面了,这块辅助板对组装厂是没有用处的,裁版之后就会被丢弃,所以应该不可以计算在利用率里面,所以其板材利用率的计算应该是
[[146×142(拼板的总面积)-72×68(辅助板A的面积)] x48] / [10287×1231.9(板材大小)] = 60%

这下子「方案1」的板材利用率反而变成了最低。看样子拼板的方式应该会跟著翻盘,所以计算板材利用率时应该只能计算单板的面积,而不能计算拼板的面积。而且最好请板厂每种拼板都要报个价钱,因为最终还是以价钱来决定拼板的方式,虽然还得考虑电子组装厂的作业。
要求板厂对这三种拼板重新做报价而不只提供板材利用率的数字,发现「方案1」的单板价钱果然是最贵的,而「方案2」及「方案3」的对插拼板都比同一个方向拼板来得便宜,所以该选那一个拼板答案应该很明了了。
| 拼板方案 | 板材大小 | 拼板數/板材 | 单板/板材 | 拼板尺寸 | 板材利用率 | 单板价钱 |
| 1 | 40.5” x 48.5” 1028.7mm x 1231.9mm | 48 | 96 | 146mm x 142mm | 78.50% | NT116 |
| 2 | 36.5” x 48.5” 927.1mm x 1231.9mm | 48 | 96 | 203.9mm x 85.2mm | 73.00% | NT110 |
| 3 | 36.5” x 48.5” 927.1mm x 1231.9mm | 24 | 96 | 203.9mm x 158.6mm | 67.90% | NT112 |
射频工程师养成培训教程套装,助您快速成为一名优秀射频工程师...

