- 易迪拓培训,专注于微波、射频、天线设计工程师的培养
NFC的架构与规范详解
近年来由于手机的功能与普及度快速的成长,使早期的电子钱包有了推广的机会点。NFC的演进取自于RFID的特定频段,由于手机的市场应用使的NFC可在较快的时间点取得标准接口与平台,本文将针对NFC的架构与规范做讨论。
NFC应用
电子付费系统中,目前应用于手机系统上最完整的解决方案是以NFC(nearfieldcommunication)为主,市场上也已经有相关产品流通着,如NOKIA3220、SamsungSGH-X700、VISAWAVE及台北捷运优游卡等,皆是兼容于NFC系统。除了个人识别与电子付费系统外,NFC也在数据传输与交换上有了一些吸引人的功能,例如:电子海报的数据下载(包括入场卷、会展信息)。此外,NFC还可以作为蓝牙设备配对及输入密码的简化功能,若是使用者具有负载NFC的蓝牙设备,即可将NFC分别靠近两组具有NFC的蓝牙设备,如此即可不需要透过蓝牙搜寻及输入密码的配对过程即可快速连结。目前韩国、中国及欧美已经在电信业者、芯片商与手机制造商的合作下于公交付费系统中进行多次的验证,预期NFC将有快速的成长。
NFC架构
NFC的操作频率为13.56MHz,而操作距离约为10cm之内;而NFC的规范制定取至于RFID13.56MHz的频段,早期运用此频段包括PhilipsMiFARE(ISO1443A)、ISO1443B、ISO15693、ISO18000-3及SonyFelica。由于非接触卡应用于个人数据识别或电子付费系统中强调于安全机制,而近乎于贴近卡片阅读器系统的近场通信及是将13.56MHz中短距系统的部分加以整合,所以最后市场上所见的即为PhilipsMiFARE(ISO1443A)及SonyFelica,早期这两家系统各自发展互不兼容,直到近年才将两种规格合并并制定了NFC规范ECMA340/ISO18092(NFCIP1,NFCInterfaceandprotocol1)。此规范相容于现有PhilipsMiFARE(ISO1443A)及SonyFelica。

NFC工作频率为13.56MHz、ASK调变,传输速率可分为106kbps/212kbps/424kbps三种,通信模式可分为主动模式与被动模式,主动模式是指发起设备(initiator)与目标设备(target)皆可自身电源供应产生RFfield,而被动模式下则是发起设备自身供应电源产生RFfield;而目标设备则利用全波整流线路将发起端的RFfield之能量转换为DC来供应自己的电源。值得一提的是,在被动模式下为了要满足省电的要求所以采用了负载调变(Loadmodulation)的方式,此调变方式可以达到省电的效果。
在使用上因为NFC的使用通常会遇到使用尖峰时期,会了避免不同的发起端或目标端同时沟通造成数据链路错误,所以NFC采用了一种机制listenbeforetalk。此机制会让当发起端设备要发出询问信号前,先侦测外界磁场强度来判断是否有其它的设备正在沟通中,这种机制的实现称为RFCollisionAvoidance(RFCA),其动作行为是在每次发起端发出询问信号时会侦测外界磁场,当磁场强度超过门坎强度时(Hthreshold=0.1875A/m)则会停止询问,直至外界强度降至门坎值以下。若是低于临界值才会开始发出询问指令,侦测的时间为TIDT+nTRFW,n为0~3的机率取样:TRFW=512/fc(RFwaitingtime),TIDT>4096/fc(initialdelaytime)。当发起设备在TIDT+nTRFW内没有侦测到超过门坎强度的磁场,则会先发射TIRFG的未调变RFfield之后再发出询问信号,其中TIRFG必须大于5ms。

[page]
NFC规范调变
在此将针对NFCRFinterface做叙述,首先要先介绍EMCA340与EMCA356两种标准,EMCA340中叙述NFC相关协议,这里先引入数据封标作讨论,NFC数据分包分为两种类型,一为106kpbs、一为212/424kbps。


由于NFC106kbps为100%ASK调变,所以对整个High/Low信号的封包结构都有相当详细的定义。其中几个参数包括从100%下降到5%Am时间(t1)、5%Am持续时间(t2)、Am由5%上升至60%时间(t4)即overshoot的范围。而212/424kbps则是8%~30%的调变率。
[page]
RF测试kit
1.Calibration coil:coil的功能在于验证测试过程中,待测物所发射出的信号是否为正确的强度与调变。此Coil为一简单的天线架构,当然EMCA也详细的规定了所有的尺寸,由此coil所测出的值为0.32V(RMS)=1A/m(磁场强度)。

2.Field Generating Antenna:kit用于磁场的发射,图中还包含了一组天线匹配线路。

3.Sense coil:sense coil用于量测待测物的磁场强度与调变。

[page]
4.Reference device:图7为两种测试标准线路和一组天线coil,此referencedevice用于测试DUT的标准件。其中又包含了两组测试电路,图7-2为调变测试电路,图7-3为电源测试电路。



RF测试程序
1.发起设备Power测试:此测项在测试由发起设备所供给的磁场强度是否供给目标物足够的工作电源。将信号由generatingantenna调整发射,于右端的calibrationcoil量测到的强度为Hmax(7.5A/m),此时再将referencedevice配合power测试线路调整C2使线路共振点位于19MHz(此部份在规范中并无详述为何调整至19MHz,在此推论若19MHz可达到3V输出则当目标物为13.56MHz时其电压一定会超高3V,此因该为取其下限值),放置于DUT位置,调整线路R2使的由C3所得到之电压值为3V。此时Referencedevice已经完成,之后再将此卡用来量测发起设备,将此卡放至于发起设备所标注之超作范围,在此超作范围内任意位置所量测到的电压值(C3)皆不可超过3V。至于Hmin测试则与max大致相同,不同处为将referencedevice共振频率调至13.56MHz及所量测知电压值皆须超过3V。

[page]
2.目标物的loadmodulation测试:
(1)被动模式
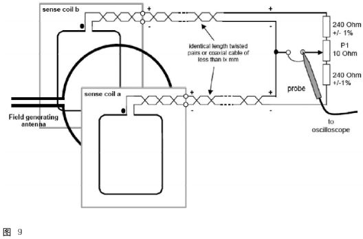
●106kbps:此测试为验证目标物可正确调变出波形,先将calibrationcoil放置于下侧外缘,确定generatingantenna所发射之波形与强度正确无误,此时再将待测目标物放置于上侧外缘,编辑一个ECMA340所定义之SENS_REQ波型由generatingantenna发射并在待测目标物会回送一个SENS_RES信号,如此即可透过二个sensecoil量测到信号,此量测架构因考量回传之负载调变信号微弱,所以利用两个sensecoil之间电压差做计算,由于兼容系问题,所以在106kbps延续MiFARE使用副载波(subcarrier)的调变作被动目标物的回传信号,所以量测点应于fc+fs与fc-fs(fc=13.56MHz,fs=fc/16)。

●212/424kbps:高速的调变信号量测方式则与106kbps十分相似,只是将量测撷取位置改为fc,因为此两种传输速度下并无使用副载波调变
(2)主动模式
主动模式的测试与被动模式上并无太大的差异,由于是主动模式所以加测了目标物的RFfield发射的时间,指令下达的时间……等。
3.发起设备的loadmodulation测试:此测试在于验证发起设备的调变机制,可分为主动模式发射与被动模式接收两种。
(1)主动模式发射:将calibrationcoil放置于发起设备所定义的任意位置,而所量测的波型皆需符合ECMA340所定的规范。
(2)被动模式接收:此为测试发起设备可以正确的接收被动目标物所回传的信号。利用图7-2的loadmodulation测试线路所做成的referencedevice,先将对应C3电压与距离的关系以图8的架构校正好,之后即可将此卡与发起设备的待测物做量测,测试由referencedevice所发出的调变信号于待测物端的接收情况。在此只能对部分的测试项目做讨论而详细的测试请参考ECMA。
NFC系统与芯片开发
目前市场上所能见到的NFC最为积极推动的包括了Philips、NOKIA、Sony与Samsung,而这几家厂商皆有产品于市场上,包括PhilipsPN511/PN531、NOKIA3220,RFMD也预计于RF4100与RF4113两个具有NFC功能的单芯片,RF4100为蓝牙与NFC整合的系统芯片,具有高整合度的手机应用界面,而RF4113则为NFC系统芯片。RF4100尺寸为5mm×5mm的BGA与3.7mm×3.7mmWLCSP。预期NFC将会为手机应用层面带入一个新纪元。
如何成为一名优秀的射频工程师,敬请关注: 射频工程师养成培训
上一篇:我国物联网蕴含巨大商机
下一篇:运营商赶搭手机支付

