- 易迪拓培训,专注于微波、射频、天线设计工程师的培养
5G高频关键技术及测试性能分析
王巍:爱立信(中国)通信有限公司研发中心系统技术部高级技术经理。
刘愔:爱立信(中国)通信有限公司研发中心系统技术部高级技术经理。
本文主要讲了什么内容?
5G技术方兴未艾,各种候选技术获得业界的广泛关注。本文结合高频技术在5G中的应用场景和关键技术,介绍了爱立信开发的5G高频无线空口测试床,分享了在中国5G技术研发试验第一阶段的测试结果,分析并总结了5G高频技术的出色表现。
一、引言
随着社会对5G 技术越来越关注,5G 已经不再仅仅是人们通话的手段,它更承载了人们突破传统的移动无线宽带(MBB)业务实现万物互联的决心和愿景。ITU 定义了5G三大应用场景,包括增强移动宽带(eMBB)、超高可靠低时延通信(URLLC)和大规模机器类通信(mMTC)。
对于提供极致体验的高传输速率的5G 应用,如eMBB,大带宽的使用是必须的。从全球范围来看,较低频段(如6GHz以下)获取大段带宽的可能性微乎其微,只有高频还蕴藏着相对丰富的频谱资源,在更高频率上可以获得更大带宽,从而可以大幅提升用户吞吐量和系统容量。
因此,高频技术成为5G系统中一个重要的候选技术,重点面向超大带宽的极致eMBB业务。WRC-19 AI1.13 议题也将对未来5G在6GHz以上的候选频段进行研究。
此外,高频信号衰落快,邻小区的干扰会大大降低,适合超密集组网。大规模天线(MassiveMIMO)是5G中的一个关键技术,非常适合在高频上工作。高频的波长小,可以设计尺寸更紧凑的天线,更适于MassiveMIMO的部署。
另外,针对6GHz以上频率的无线传播特性得到了相当的关注。在5G联合研究项目METIS中,就展开了针对高频的信道研究,为5G应用场景更新了相关信道模型。
尽管困难重重,关于5G高频的研究还是取得了相当的进展。本文将重点介绍爱立信无线空口高频测试床和应用的关键技术以及室内外测试的结果及结论。
二、5G高频测试样机简介
爱立信公司最早于2014 年开发了工作在高频(如15GHz)的5G无线空口测试床,用于展示5G系统能力和研究5G高频传播特性和关键技术。2016 年夏天,爱立信公司携最新一代无线高频测试床参加了工信部组织的中国5G技术研发试验第一阶段测试,出色完成了高频及相关关键技术的技术验证,如Massive MIMO、波束赋形、波束追踪、以及多用户MIMO等。
测试床基站侧设备参见图1。其中左侧为基站柜体,中间为5G NR(新空口)无线单元,右侧为5G NR(新空口)测试终端。试验网络拓扑参考图2,基本参数配置参见表1。

图1、爱立信5G NR测试床

图2、测试网络拓扑
表1、基本参数配置表

Massive MIMO,顾名思义,就是利用很多天线阵子采用波束赋形和空域复用的方式,来获取多流传输,从而大幅提升速率和容量,通过多用户共享时频资源最终带来频谱效率的增加。更窄的波束可以更有效地将能量和信息传递到特定的用户;采用特殊设计的参考信号,只需有限的反馈,系统可以追踪运动中的用户来保障移动中的用户体验。
三、5G高频外场测试性能分析
在5G技术研发试验第一阶段的测试中,先后对室内、室外的LOS和NLOS场景进行了测试,涵盖了定点测试、覆盖测试、波速跟踪和MU-MIMO等测试用例。
1、室内测试场景和用例
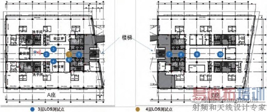
(1)室内测试场景选择在办公楼跃层场景,测试选点跨越了A座和B座,上下两层(见图3)

图3、室内LOS定点测试场景
在室内测试视距场景下,15GHz覆盖性能良好,测试平均吞吐量7.7Gbit/s,单用户峰值吞吐量可达15.1Gbit/s。同时,利用3D-MIMO功能可以对多层楼进行有效覆盖。
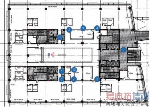
NLOS场景选点分布在被茶水间、洗手间、会议室及电梯间遮挡的走廊和过道,选取包括玻璃墙,非承重墙以及承重墙为遮挡物的多个测试点,如图4所示。

图4、室内NLOS定点测试场景
在室内测试非视距场景下,高频有丰富的反射通道,结合波束赋形和波束跟踪技术,在该场景下高频测试仍能取得良好的覆盖,非视距场景最高速率9.1Gbit/s,平均速率4.3Gbit/s。
(2)MU-MIMO测试
室内LOS场景下的MU-MIMO测试,如图5 所示。

图5、室内LOS场景MU-MIMO测试
借助于优化的波束赋性算法,在狭窄有限的室内环境下,仍能成功进行MU的配对,峰值速率可达23.1~25Gbit/s。
(3)覆盖测试
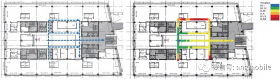
覆盖测试中包括了视距和非视距场景,遍历路线经过了茶水间、会议室、办公区域以及电梯间,室内覆盖测试平均吞吐量达到6.5Gbit/s,测试路线及吞吐率性能如图6所示。

图6、室内覆盖测试
(4)波束跟踪测试
基于现场环境选取了垂直方向角0度,水平方向从右到左一共跨越6个波束进行波束跟踪功能的测试,波束切换正常,能够很好地跟踪用户移动,波束切换过程对速率没有影响。
2、室外测试场景和用例
室外在视距和非视距场景下进行了定点、覆盖和波束跟踪测试。非视距包括街边配电箱、浓密树木,以及货车等场景(见图7)。

图7、室外测试场景
(1)定点测试
在视距场景定点测试中,平均吞吐量达到7.2Gbit/,MU-MIMO峰值速率超过21Gbit/s。非视距场景定点测试平均吞吐量达到5.1Gbit/s。室外MU-MIMO测试如图8 所示。

图8、室外MU-MIMO测试
(2)覆盖测试
覆盖测试中遍历了视距和非视距场景,其中路线1主要是视距场景,部分区域为非视距场景,遮挡物为树木;路线2主要是非视距场景,主要遮挡物为树木和施工建筑材料。室外覆盖测试平均吞吐量达到5.0Gbit/s,吞吐率性能如图9所示。

图9、吞吐率性能
(3)波束跟踪测试
基于现场环境选取了水平方向共7个波束进行波束跟踪功能的测试,波束切换正常,能够很好地跟踪用户移动,波束切换过程对终端下行速率没有影响。
四、总结
通过5G高频测试床的外场(室内、室外)测试,验证了高频大带宽、MU-MIMO、波束跟踪等功能,有效克服了高频衰落大、易被遮挡等困难。同时,通过良好的系统设计,解决了高频关键器件相噪差等问题,实际测试中性能表现优异:
(1)室内定点单UE峰值速率15.1Gbit/s,两UE峰值速率大于23.1Gbit/s。
(2)室内视距场景定点测试平均吞吐量7.7Gbit/s,非视距场景平均吞吐量4.3Gbit/s,室内覆盖测试平均吞吐量6.5Gbit/s。
(3)室外测试单UE峰值速率11.4Gbit/s,室外两UE峰值速率大于21Gbit/s。
(4)室外视距场景定点测试平均吞吐量7.2Gbit/s,非视距场景平均吞吐量5.1Gbit/s,室外覆盖测试平均吞吐量5.0Gbit/s。
同时采用波束赋形和波束跟踪有效地提升了高频通信的覆盖性能,室外覆盖超过350m,在距离基站320m处速率仍可达4.9Gbit/s。
上一篇:5G通信技术解读:小基站里的大作为
下一篇:国外频率共享发展分析及对我国的启示


