- 易迪拓培训,专注于微波、射频、天线设计工程师的培养
汽车电子e-Mark认证测试介绍之辐射骚扰测试
2002年10月起,根据欧盟指令72/245/EEC,以及修正指令95/54/EC的要求,凡是进入欧盟市场进行销售的汽车电子电器类产品,必须通过e-Mark认证相关测试认证,标贴e-mark,欧盟各国海关才会予以放行,准许进入当地市场,所以汽车电子电器类产品之e-Mark认证,势在必行。自2006年7月1日以来,小e-mark的新指令2004/104/EC代替旧指令95/54/EC强制生效。本文就车载DVD播放器为例来分析新指令2004/104/EC的辐射骚扰具体测试要求及方法。
汽车电子产品测试实例分析:
产品名称:车载DVD播放器
产品功能描述:DVD播放功能,FM/AM接收功能,USB Host功能
认证标准:2004/104/EC
辐射骚扰限值要求:
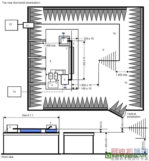
实验布局图:
实验要求在半电波暗室里进行,测试接受天线分为两种:双锥天线和对数周期天线。
注:
1 EUT(如果在测试计划中需要则就近接地)
2 测试线束
3 负载模拟器(按照6.4.2.5要求放置及接地)
4 电源(位置可选)
5 人工电源网络(AN)
6 接地板(与屏蔽体相连)
7 绝缘材料支撑(εr≤1.4)
8 对数周期天线
10 高质量双层屏蔽电缆(50Ω)
11 壁板连接器(接头)
12 测量设备
13 射频吸波材料
14 模拟及监系统
图13 测试布置示例-对数周期天线
测试设置照片:(30MHz-200MHz:双锥天线)
(200MHz-1GHz:对数周期天线)
测试过程以及测试设置:
1. 将被测物放置于暗室里的1米高木制桌面上
2. 将被测物与测试天线的距离调解为1米
3. 设置接收机的检波方式为PEAK(峰值检波方式),测试曲线模式设置为MAX HOLD(最大功能保持)
4. 将天线换成双锥天线且方向垂直,从30MHz扫描到200MHz
5. 将天线换成双锥天线且方向水平,从30MHz扫描到200MHz
6. 将天线换成对数周期天线且方向垂直,从200MHz扫描到1GHz
7. 将天线换成对数周期天线且方向水平,从200MHz扫描到1GHz
8. 更换被测物的工作模式(DVD播放模式,FM/AM接受模式和USB播放模式)重复进行4-7.
测试结果参考:
图一:30M-300Mhz测试图例
图二:300M-1Ghz测试图例
EMC电磁兼容设计培训套装,视频教程,让您系统学习EMC知识...

