- 易迪拓培训,专注于微波、射频、天线设计工程师的培养
绝密资料曝光 双镜头竟是这么造出来的!
录入:edatop.com 点击:
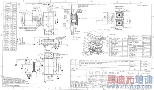
荣耀的"攻城狮"在历经几个月的设计和可靠性验证修改后,设计定型的双镜头模组如下,天啊,这复杂的草图让人眼花缭乱,事实上,双摄像头背后的技术确实极为复杂,和单镜头相比研发耗时成倍增加,让我们来看看具体是如何操作的:

物料来源:
摄像头属于典型的全球分工的产品,其中的部件也是来自全球很多大公司生产的部件,属于真正的高科技产品,其中的每种技术都是很领先的技术,荣耀6Plus采用的双镜头组件可谓精挑细选:
VCM马达:TDK,Mitsumi

传感器:OVOV8865,SONYIMX

Lens:Kantatsu(夏普集团旗下光学镜头厂),台湾大立光学(LARGAN)


